Property Detail

₽180 000 / ₽2 571 за м2

Москва, ул. Лобненская, д. 13К2

Тип: Аренда Метраж: 70.0 м2

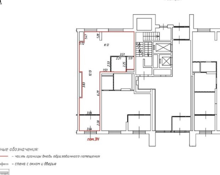
Предлагается в аренду торговое помещение свободного назначения в ЖК "Дмитровский парк" расположенного по адресу: Москва, Лобненская улица, 13к2.

Описание: 1 этаж, площадью 70 м2. Вход с первой линии пешеходного бульвара, высота потолка 4.3 м2, зальная планировка, 15 кВт, выполнен косметический ремонт. 

Стоимость аренды: 180 000 рублей.
Стоимость аренды за м2: 2 571 рубль.

Тип сделки
Аренда
Общая площадь
70.0 м2
Цена за м2
₽2 571
Тип недвижимости
Аренда ПСН
Этаж
1
Всего этажей
30