Property Detail

₽72 576 000 / ₽576 000 за м2

Москва, Кавказский бульвар, д. 51, корп. 1.5

Тип: Продажа Метраж: 126.0 м2

Предлагается к продаже торговое помещение в ЖК "Кавказский бульвар 114" по адресу: г. Москва, Кавказский бульвар 51, корпус 1.5. ЖК «Кавказский бульвар 51» строится в районе Царицыно, недалеко от музея-заповедника. До метро «Кантемировская» можно добраться за 17 минут пешком. За 20 можно дойти до станции «Чертаново». В 10 минутах на машине — МКАД, в 11 минутах — Варшавское шоссе, а в 16 минутах — ТТК. В проекте жилые дома высотой от 23 до 33 этажей, детский сад и школа.

Ввод в эксплуатацию: 4 квартал 2025 года.

Технические характеристики:
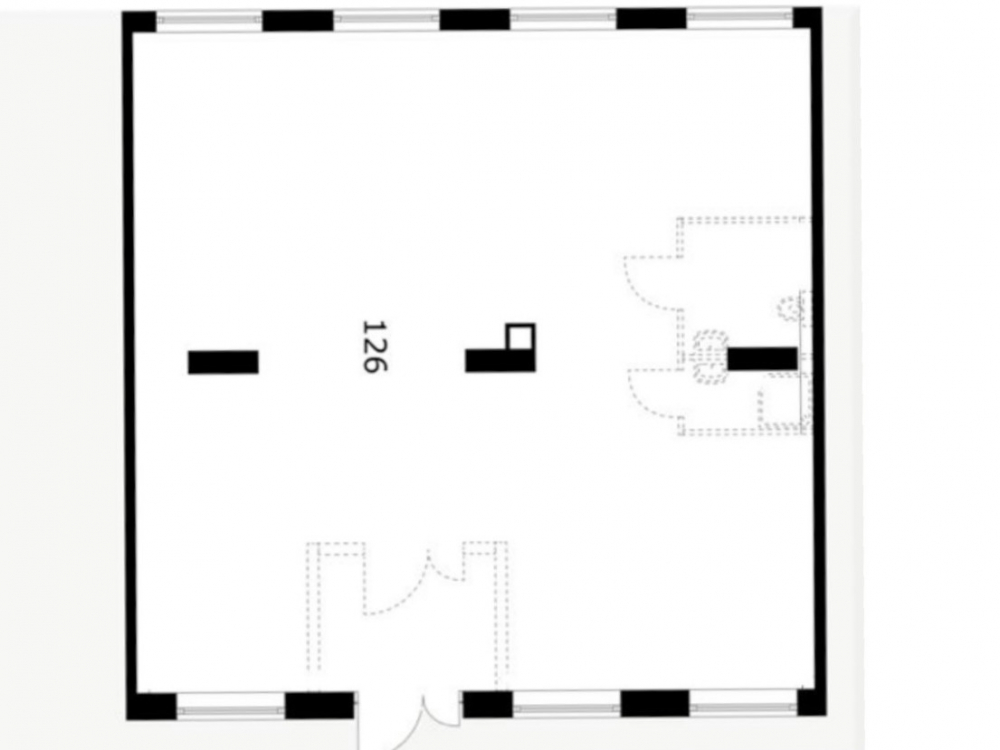
Первый этаж стилобатной части, площадью 126 м². Отдельный вход с первой линии Кавказского бульвара, семь окон по фасаду, зальная планировка. Состояние отделки: shell&core. Высота потолков – 4 м. Электрическая мощность – 25 кВт. Парковка вдоль здания.

Коммерческие условия:
Стоимость объекта: 72 576 000 рублей.
Стоимость объекта за м²: 576 000 рублей.

Тип сделки
Продажа
Общая площадь
126.0 м2
Цена за м2
₽576 000
Этаж
1
Всего этажей
25