Property Detail

₽2 000 000 / ₽3 703 за м2

Москва, ул. Миклуха-Маклая, д. 18/2

Тип: Аренда Метраж: 540.0 м2 Беляево

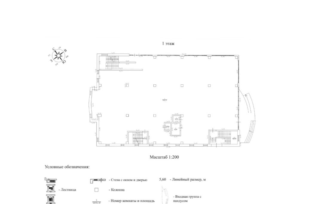
Предлагается в аренду первый этаж семи этажного торгово-офисного центра по адресу: Москва, ул. Миклухо-Маклая, д. 18/2, площадью 540 м2 (сдается полностью этаж). Объект расположен в плотно заселенном районе Коньково, обладает высокой пешей и транспортной доступностью. В районе 16 проектных и НИИ, 40 учреждений образования. В непосредственной близости станция метро "Беляево" (в 10 минутах пешим  шагом).

Характеристики помещения:
1 этаж площадью 540 м2. Весь объект представляет собой семи этажное здание (2 подземных, 5 наземных этажей), три входа, два лифта (пассажирский, грузопассажирский), имеются пожарные лестницы между этажами, зона разгрузки/погрузки, большие витринные окна по всему периметру. Высота потолка 4.5 метра, количество электроэнергии 150 кВт. Отдельная технологическая вытяжка. Первая линия, парковка, возможность размещения летней веранды. Ввод объекта в эксплуатацию - 4 квартал 2025 г. 

Коммерческие условия:
Стоимость аренды/месяц: 2 000 000 рублей.
Стоимость аренды за м2: 3 703 рубля.

Тип сделки
Аренда
Общая площадь
540.0 м2
Цена за м2
₽3 703
Этаж
1
Всего этажей
7
Станция метро
Беляево